Осенью минувшего года, после «чудесного избавления» от белого гриба, Дачу Гаусвальд спешно накрыли футляром. По сведениям КГИОП, под футляром проводились противоаварийные работы, однако что именно они предполагают, держалось в секрете. Проект работ по приспособлению здания, выполненный ООО «Союзстрой», поступил в Комитет только в феврале.
Как стало известно из историко-культурной экспертизы, размещённой на сайте КГИОП, исторический комплекс (особняк и корпуса служб) планируют приспособить под «офисные и представительские цели». Здание особняка станет офисом для приёмов, а в служебных постройках разместят вспомогательные помещения — диспетчерскую, пункт охраны, электрощитовую и индивидуальный тепловой пункт.
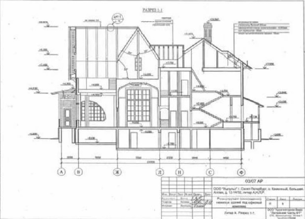
Как и в нереализованном проекте архитектурного бюро «Литейная часть-91», выполненном по заказу предыдущего собственника, который хотел снести и воссоздать особняк, под всеми строениями предполагают устроить подземный этаж из железобетона. Он будет высотой 2,7 метра, в нём разместят коммуникации, венткамеру и комнату для приёма пищи.

Для устройства подземного этажа необходимо будет произвести откопку грунта и выполнить пересадку зданий на новый фундамент. Ради этого проектировщики решили пожертвовать историческими столбчатыми фундаментами особняка, находящимися под охраной, а нижние венцы деревянного сруба стен очень кстати оказались подгнившими (техническое обследование комплекса выполнила скандально известная фирма «Бэскит»), поэтому стены особняка по брёвнышку вывесят, а затем пересадят на металлический каркас. Весь наружный декор фасадов: керамическую отделку и изразцы, деревянный резной декор со стен здания — снимут и промаркируют.
Интерьеры особняка
Проект также предполагает полную замену перекрытий особняка с последующим воссозданием исторической отделки помещений, являющейся предметом охраны. Фундаменты полностью заменят и в одном из служебных корпусов (литера Н), а здание бывшей оранжереи, перестроенное в 1920-х годах, полностью снесут и отстроят заново.
Разработчики документации обещают, что подобные метаморфозы улучшат эксплуатационные характеристики зданий. В это несложно поверить, однако, как всегда казалось, памятник подобного масштаба заслуживает более бережного реставрационного подхода.
Анна Капитонова
Фотографии Романа Везенина