На сайте Госзакупок размещена информация о конкурсе на разработку проектной документации. Цель – самая похвальная: «обеспечение доступа инвалидов и малоподвижных групп населения в здании Павловского (большого) дворца». Для этой цели предполагается установка лифта в Центральном корпусе дворца.
Но как совместить возможность доступа инвалидов и сохранение памятника? Задача всегда не из простых, особенно когда речь идет о таком здании, как Павловских дворец. В документах, приложенных к контракту, можно увидеть два варианта размещения лифтовой шахты.

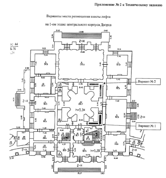
Варианты расположения лифтовых шахт. Из контракта на разработку документации по приспособлению памятника
Специалисты-музейщики, на условиях анонимности, высказывают недоумение: почему выбрано именно такое расположение? «Ведь именно здесь сохранились исторические, Камероновские своды! Почему не сделать лифты в другом месте, где перекрытия были разрушены во время Великой Отечественной войны?»
Наши собеседники также отмечают, что во дворце уже есть подъемник для инвалидов. И говорят о том, что следовало бы в первую очередь рассматривать другие варианты, например, разнообразные подъемники, которые позволяли бы инвалидам спокойно подниматься на второй этаж по лестницам. И отказаться от лифтов, сооружение которых неминуемо нарушит и интерьеры дворца, и перекрытия.